27 West Business Center
6305 Cambridge St. | St. Louis Park, MN. 55426
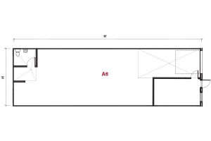
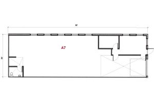
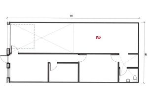
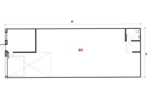
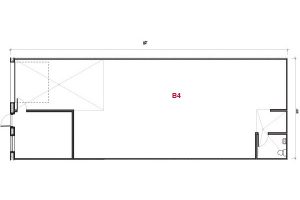
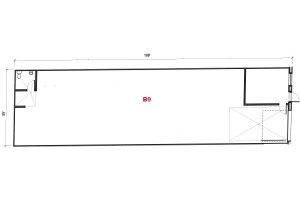
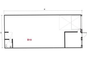
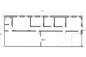
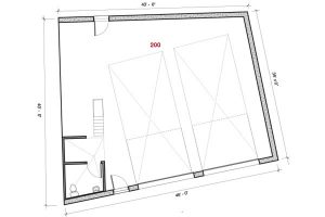
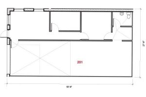
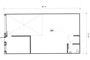
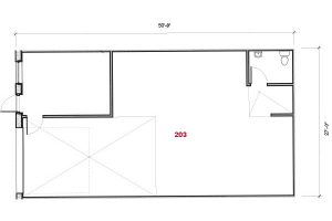
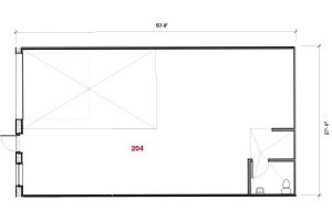
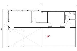
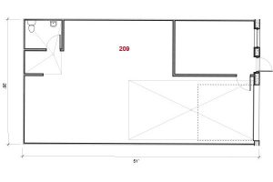
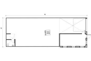
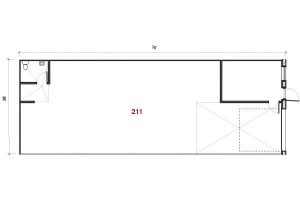
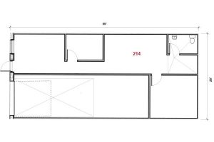
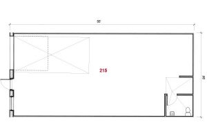
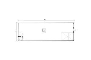
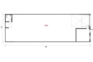
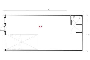
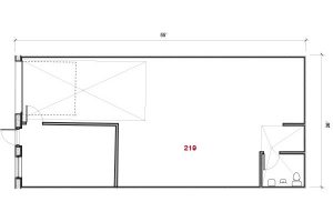
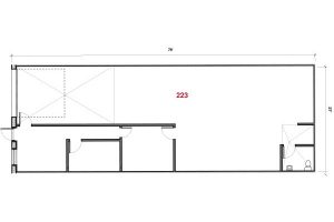
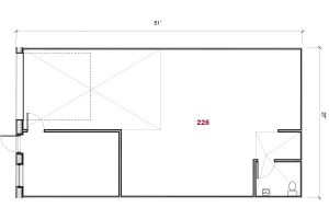
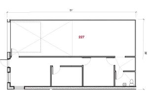
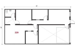
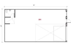
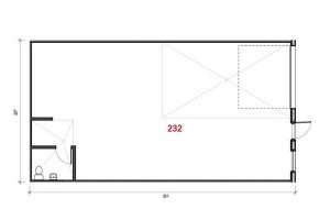
Warehouse with Small Office or Warehouse / Workspace
- Unit sizes 700, 1400, 2100, or 2800 square feet
- Office sizes available 200, 500, 700, 950 square feet
- All units drive-in doors, 10x12, 12x12 ft.
- Units include restrooms and floor drains.
- 14’ clear ceiling heights
- 100 amp 3-phase 208v
- Common Units A & B have dock access
- 1 year leases available























































