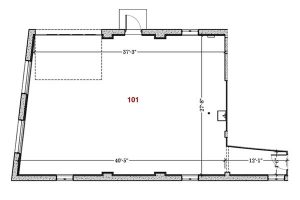
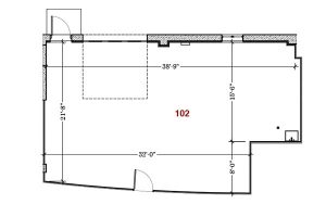
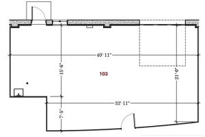
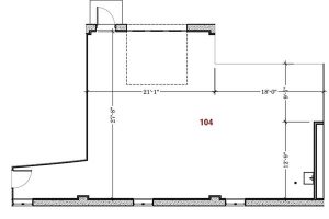
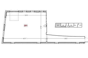
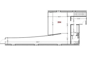
CBC-5 Building
6333 Cambridge St. | St. Louis Park, MN. 55416
Warehouse with Small Office or Warehouse / Workspace
- Business Centers office location - 2 story building
- Unit size 910 to 1,450 sq. feet (see floor plan)
- 100 amp - 3 phase power
- Commons restroom
- Floor drains - main floor units
- 9 ft. drive in doors on main floor 10ft. x 9ft.
- Extra-large elevator with 4 ft. wide doors
- 4 ft. wide entrance doors on the second floors units
- 1 year leases available








